VTechWorks staff will be away for the Thanksgiving holiday from Wednesday November 26 through Sunday November 30. We will respond to emails on Monday December 1.
 

National Museum of Film and Photography

TR Number

Date

1998-02-12

Journal Title

Journal ISSN

Volume Title

Publisher

Virginia Tech

Abstract

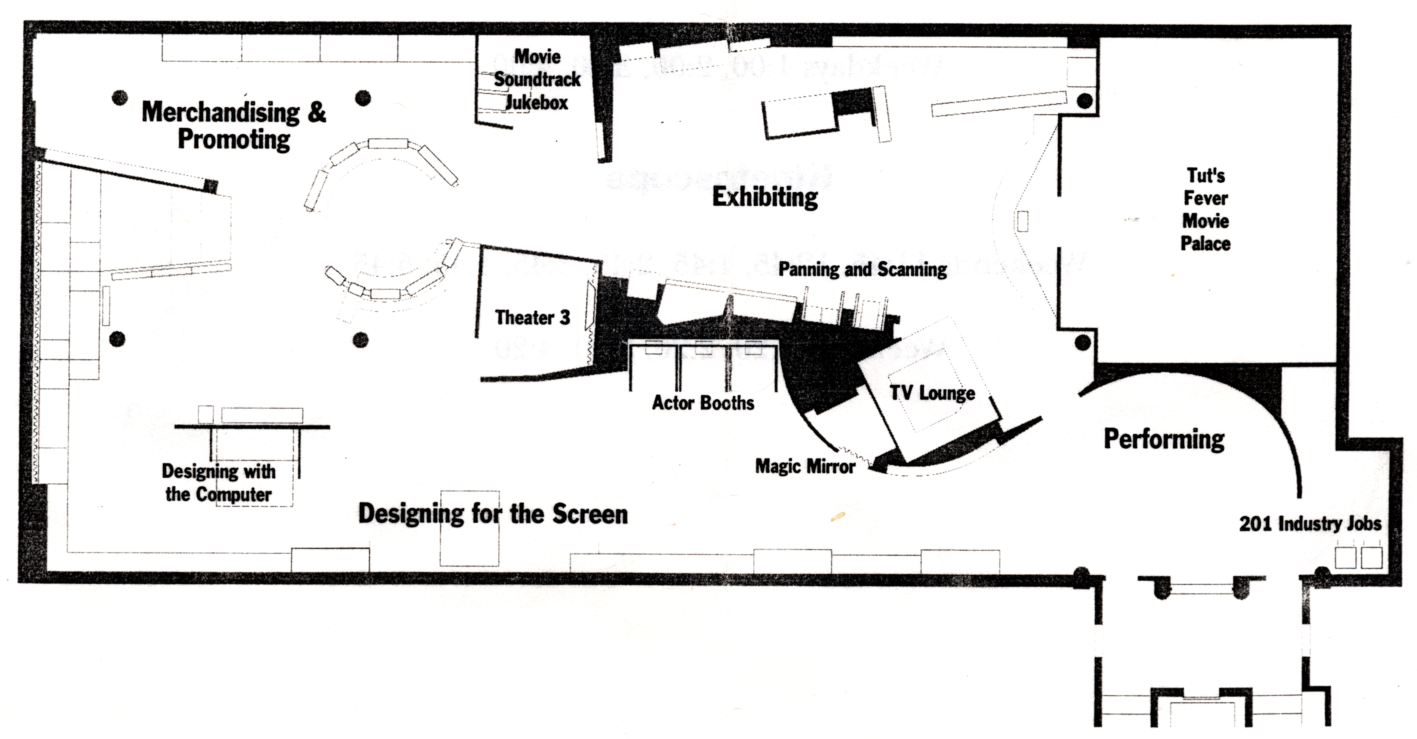
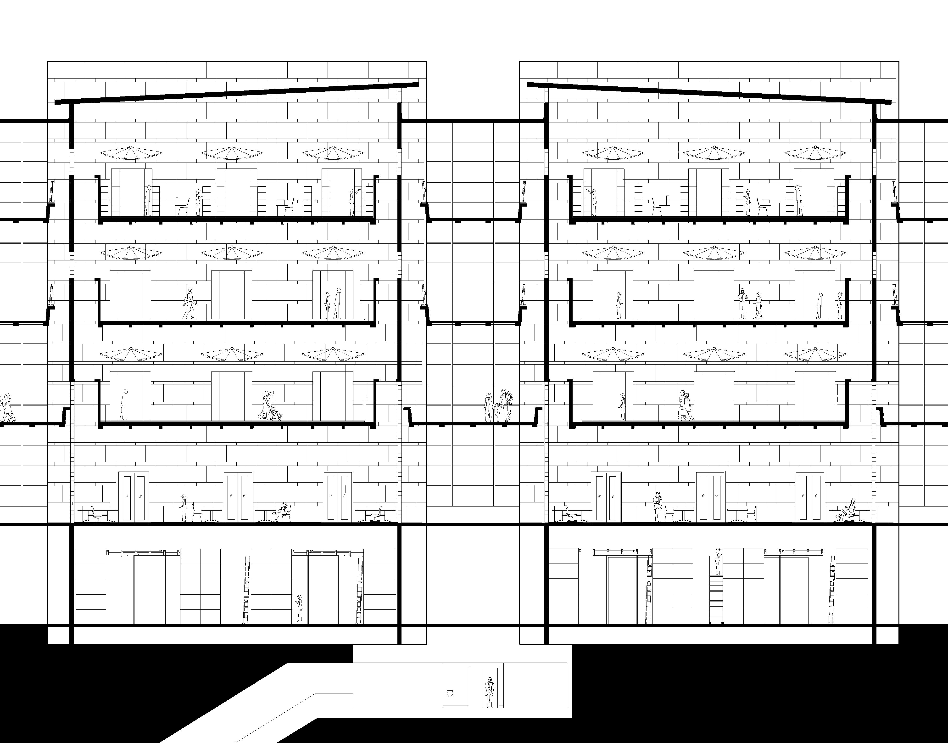
Between the National Gallery of Art and the National Museum of Natural History in Washington, D.C., the National Museum of Film and Photography design thesis explores issues of architecture at a scale of cultural significance. This thesis is the architectural manifestation of a museum as a research institution, separate from, yet contributing to an educational mission. It is inspired by the thin line between the two worlds, the public museum and the unseen, though often larger, private archive. In this thesis, a home for a treasury of artifacts was designed, so that they might be experienced, and for their intrinsic value.

This design thesis explores the role of context, scale, and geometry in a building for the National Mall, as well as the critical requirements and specialized program of a museum. The orthogonal and radial geometry of the city are echoed in the plan. The building program, as well as the physical opportunities of the site, led to the form of the building. The simultaneous cycles of the artifact, the visitor, and the worker, and how they related to the role and amount of natural light also contributed to the form. The thesis is also developed based on the relationship between an object or a film, and a viewer.

Description

Keywords

Archive, Washington D.C., Architecture, National Mall

Citation

Collections